Mehdiabad qəsəbəsində "Qarabağ" marketlə üzbəüz "Gənclər şəhərciyi"nin yaninda yerləşir. Demək olarki Binəqədinin ərazisidir.
4 sot torpağın içində yerləşir. Torpağın Çıxarışı, evin İcra Hakimiyyətindən Sərəncamı var.
Evin suyu, qazı, işığı daimidir. 1.2m (6daş) zirzəmi ilə tikilib. 2 mərtəbəlidir ev. Evin ölçüləri 11.5m*10m-dir. Ev qoşa daşla + 500 marka sementlə (Mazandaran) inşa edilib.
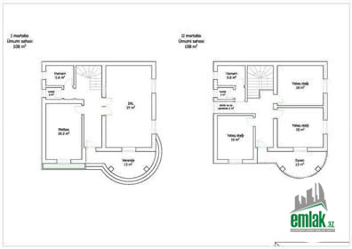
1-ci mərtəbədə 37kvm (8.2m*4.5m) zal, 21kvm (5.5m*3.8m) mətbəx,10kvm (3m*3.3m) sanitar qovşaq yerləşir. 2-ci mərtəbədə iki ədəd 18kvm (4.5m*4m) yataq otağı, bir ədəd 21kvm (5.5m*3.8m) yataq otağı, 7kvm (3m*2.3m) sanitar qovşaq,12kvm (7.5m*2.5m) eyvan yerləşir.
Ev tam təmirlidir. 2023cü il tarixində 70.000Azn xərc qoyulub təmirinə. Qalan iş fasadın rənglənməsidir (2000Azn xərci var).
Tam hasara alınıb. 15 tonluq yeraltı su çəni tikilib. Həyətində bir neçə adda bar verən meyvə ağacları var.
Alıcı ilə qiymətdə razılaşmaq mümkündür.
Əmlakın növüHəyət evi
Sahə230 m2
Otaqların sayı5
Mərtəbə sayı2
TəmiriƏla təmirli
Sənədin tipiÇıxarış (Kupça)
Əlaqəli şəxs
Diqqət! Əgər zəng etdiyiniz zaman nömrəni Emlak.az saytından götürdüyünüzü desəniz, sizə xüsusi endirim olunacaq.
Novxanı qəsəbəsində isə 20 sot torpaq sahəsində tikilmiş 5 otaqlı həyət evi satışa təqdim olunur. Ev 260 m² ümumi sahəyə malikdir və rahat, funksional planlaması ilə seçilir.
Ev haqqında məlumat:
• Otaq sayı: 5 otaq
•...
NƏSİMİ METROSUNA 4 DƏQİQƏLİK MƏSAFƏ!!
Vorovski - Milyonerlər məhəlləsində təmirli həyət evi!
Bu ərazidə bu qiymətə belə həyət evi yoxdur.
Torpağın da, Evin də Kupçası var.
Qaz,Su,işıq daimidir.
2 sot, 150 kv.
3 m...
Saray qəsəbəsində kupçalı villa – ipotekaya yararlı
Saray qəsəbəsi, Qaçaq Nəbi küçəsində, 10 sot torpaq sahəsində inşa edilmiş geniş və komfortlu fərdi yaşayış evi satışdadır.
Evin ölçüləri: 16 × 12 metr
Ümumi p...
Xəzər rayonu, Şağan qəsəbəsində, pirə gedən yolun üzərində, əlverişli və prestijli ərazidə yerləşən fərdi yaşayış evi satılır. Ərazi daim yaşayış olan zonadadır. Ev şəxsi tikilidir, paket kupçalıdır və ipotekaya tam yara...
İPATEKAYA YARARLI PAKET KUPCA SABUNCU RAYONU MƏHƏMMƏDİ Qəsəbəsində Yeni cəkilən Sibriz yolunun üstündə 6 sotda
5 otaqlı 130 kvm mənzil satılır.
Mərkəzi Kombi sistemi var
Mərtəbə .
Sənəd Çıxarış-Kupça.Paket İpote...
Həyət evi təcili satılır.
Evin,torpağın sənədləri tam qaydasındadır.7 sot.
Dəniz mənzərəli.
Ev telefonu,vayfayla təmin olunub Ev hündürdü,kürsülüdü.
3 otaq,zal,mətbəx,dəhliz,eyvan.Həyətdə 2 su çəni,meyvə ağacları var...
Biləcərdə 2.5 sot həyətyanı sahəsi olan 2 mərtəbəli,5 otaqlı,tam təmirli həyət evi satılır.
Bütün kamunikasiya xətləri var.Qaz,işıq,su daimidir,istilik sistemi kombi,sənəd Bələdiyyə. Evin üzü aqlaydır,şəxsi tikilidir.Bi...
iki mərtəbəli kombi internet telefon daimi qaz işıq su ilə təchiz olunmuş 3 sotluq həyət evi ( ev ilə birlikdə).i bütün sənədləri qaydasındadır. həyətdə meyvə ağacları var. isti metlax çəkilib.İkinci mərtəbədə2 sanuzeli...
5-dən çox otaq var, amma əsas dəyəri torpağıdır.
Piyada 3 dəqiqəyə Mall-dasınız.
Nəqliyyat problemi yoxdur – şəhərin hər tərəfinə buradan avtobus gedir. avtobus dayanacagi sozun esil menasinda ev ile uz uzedir
5 sot...
Telefon nömrənizi daxil etməklə Sizi maraqlandıran yeni elanlardan dərhal xəbərdar olun
Xəritədə ünvanı
Dostuna göndər
Elanın premium edilməsi
Bu funksiyadan istifadə edərək elanınızı əsas səhifədə "Premium elanlar" bölməsində yerləşdirə bilərsiniz.
Premium etdiyiniz zaman elanınızın "Elanın tarixi" premium etdiyiniz dəqiqəyə yenilənir və yenidən 1 ay ərzində saytda aktiv qalır.
Bir elan premium olduğu halda yenidən premium edib ödəniş etdiyiniz zaman əvvəlki premium olunmuş vaxtdan qalan zaman indiki ödədiyiniz vaxt ilə toplanır.
Kredit kart
Portmanat
tabs 2
Elanın irəli çəkilməsi
Bu funksiyadan istifadə edərək siz elanınızı saytda irəli çəkə bilərsiniz.
Ödəniş həyata keçdikdən sonra elanınızın "Elanın tarixi" müddəti indiki zamana dəyişir və saytda yenidən 1 ay ərzində aktiv qalır.
Bundan əlavə elanınız əsas səhifədə və axtarışın parametrlərində 12 saat müddətinə irəlidə qalır və başqa elanlar əlavə edilməsinə baxmayaraq arxaya keçmir.
Profildən daxil olduğunuz zaman "Elanı irəli çək" funksiyasını paket şəklində əldə edə bilərsiniz və sonradan hansı elanınıza istəsəniz tətbiq edə bilərsiniz.
Kredit kart
Paket
Portmanat
portmanat
Elanı axtarışda seçilən et
Bu funksiyadan istifadə edərək sizin elanınızın parametrləri üzrə axtarışın nəticələrində üst hissədə öz elanınızı yerləşdirə bilərsiniz.
Xidmət haqqının ödənilməsindən sonra elanınız rənglənəcək və hətta sonradan yeni elanlar əlavə olunarsa belə, 10 gün ərzində elanınızın parametri üzrə axtarış nəticələrində üst hissədə göstəriləcək.
Kredit kart
Paket
Portmanat
tabs 2
Elanı təcili et
Bu funksiyadan istifadə edərək elanınızın üzərində "Təcili" sözünü yazdıra bilərsiniz. Elanınız aktiv qaldığı müddətcə bu söz onun üzərində qalacaq və diqqət çəkəcək.
Kredit kart
Portmanat
tabs 2
Əlaqə vasitəsini gör
Bu funksiyadan istifadə edərək, elanın sahibinin nömrəsini görüntülü edə bilərsiniz.
Kredit kart
Portmanat
tabs 2
Elanı facebook və instagramda paylaş
Bu funksiyadan istifadə etdikdə, sizin elan 80 000-lik facebook səhifəsində ve 80 000-lik instagram səhifəsində paylaşılacaq.
Kredit kart
Portmanat
tabs 2
Sosial video reklam
Bu xidmətdən istifadə edərək sizin əmlakın təqdimat videosu bizim sosial şəbəkə hesablarımızda paylaşılacaq və 1000-lərlə alıcının diqqətinə çatdırılacaqdır.
Qiymətə tərəfimizdən profesional izahlı video çəkiliş, montaj, səsləndirmə, foto çəkiliş, əmlak haqqında mətnin yazılması, elanın sayta yerləşdirilməsi-də daxildir.