İş saatları: 1-5- ci günlər. 9:00-19:00, 6 ci gun 9:00 - 14:00
Elanlara SMS abunə Daxil ol Qeydiyyat Elan ver

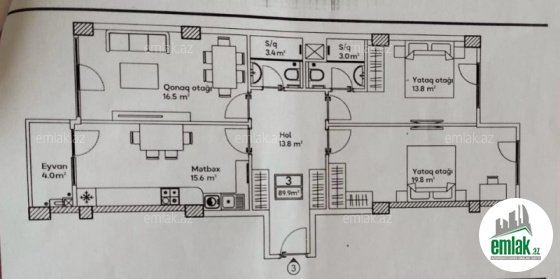
Satılır 3 otaqlı 90 m2 yeni tikili 20 yanvar m.

Elanın kodu: 1051876

167 000 $ 98 235.00
Baxış sayı: 161 Elanın tarixi: 29.12.2023

Əsas məlumatlar

20 Yanvar metrosunun yaxınlığı Melissa park yaşayış kompleksində 3 otaq təmirsiz mənzil satılır.Mənzilin ümumi sahəsi 90kvm-dir.

Əmlakın növüYeni tikili
Sahə90 m2
Otaqların sayı3
Yerləşdiyi mərtəbə18
Mərtəbə sayı20
TəmiriTəmirsiz
Sənədin tipiMüqavilə
Bu elanın vaxtı bitib
 

Ünvan: 20 yanvar metrosunun yaxınlığı

Oxşar elanlar
Mərtəbə: 3/16   Sənədin tipi: Müqavilə

Şəhərin mərkəzində möhtəşəm layihə Lux Residence!Binalar Lux və Premium səviyyədə inşa olunaraq təhvil veriləcək.Bina 16 mərtəbəlidir.Mənzilləri nağd yaxud daxili kredit şərtləri ilə əldə edə bilərsiniz....

335 825 AZN

Mərtəbə: 18/19   Sənədin tipi: Çıxarış (Kupça)

28 May metrosu | Port Baku yaxınlığı | Yeni tikili 28 May metrosuna və Port Baku ərazisinə yaxın, prestijli binada satışda mənzil. Qağayı Mtk 2 otaqdan 3 otağa düzəlmə (studiya plan) Ümumi sahə: 82 kv.m Mərtəb...

285 000 AZN

Mərtəbə: 18/25   Sənədin tipi: Müqavilə

Ağ Şəhərin mərkəzi kvartalında , yeni tikilməkdə olan 25 mərtəbəli \"PARK HİLL SKY\" yaşayış kompleksi . - Eksklüziv memarlıq - Bütün otaqlarda ponaramik vitrin şüşələr - Tavan hündürlüyü 3.85 sm - Əsas giriş qapıs...

682 500 AZN

Mərtəbə: 14/17   Sənədin tipi: Müqavilə

Grand Plaza premium yaşayış kompleksi Koroğlu və Zorge parkları ilə əhatə olunan yaşıllıq ərazidə yerləşir. Kompleks Dədə Qorqud parkı və ADA Universitetindən 3 dəqiqəlik, Nəsimi Rayon İcra Hakimiyyəti və Heydər Əliyev a...

362 850 AZN

Mərtəbə: 8/16   Sənədin tipi: Müqavilə

“Koroğlu Residence” premium yaşayış kompleksi Koroğlu və Zorge parkları ilə əhatə olunan, yaşıllıq ərazidə yerləşir. Kompleks Dədə Qorqud parkı və ADA Universitetindən 7 dəqiqəlik, Nəsimi Rayon İcra Hakimiyyəti və Heydər...

452 100 AZN

Mərtəbə: 4/16   Sənədin tipi: Müqavilə

Təcili satılır! Premium Park Neftçilər! İnvestisiya üçündə ideal qiymetdir.Bu qiymete metroya yaxın MTK-larda menzil yoxdur.Neftçilər metrosunun yanında Premium Park Neftcilər yaşayış kompleksində 16/4cü mərtəbəsində 1...

290 000 AZN

Mərtəbə: 15/16   Sənədin tipi: Müqavilə

Winter City Group tərəfindən tikilən 10 bloklu, çıxarışlı və hazır olan layihə “Malibo Residence”- yüksək həyat standartlarına cavab verən unikal yaşayış kompleksidir. Kompleksin strukturu incə memarlığı ilə tamamilə fə...

449 480 AZN

Mərtəbə: 12/17   Sənədin tipi: Çıxarış (Kupça)

Möhtəşəm dəniz mənzərəli 3 otaqlı! Azadlıq pr-ti, 28 may m/st yaxınlığında yerləşən PİLOT HAYAT RESİDENCE-də azad planlaması mümkün olan super 3 otaqlı. Hətta pəncərəylə 4 otağa da çevirmək mümkündür. Qapalı həyət, y...

449 000 AZN

Mərtəbə: 1/2   Sənədin tipi: Müqavilə

Yeni Gunesli A-B massivinde 3/1 110.9m/kv Abseron-M MTK -ya mexsus binada satilir.Menzil temirden yeni cixib qisa muddetdi yasayis var bezi esyalar menzilde qalacaq lahiyeye uygun olaraq tam 3 otaq 2 yataq ve 1 zal, 2 ed...

188 000 AZN

Mərtəbə: 9/15   Sənədin tipi: Çıxarış (Kupça)

Bina cinar mtk dir 146 kv sirket senetindedir kupcada 108 kv dir 3 otaqdir 2 sanuzel olub birini otaq etmisen hal hazirda 4 otaqdir.Xais edirem VASTECILER narahat etmesin.

287 000 AZN